Atena al día

Playa de La Albufereta

Comprar una vivienda en la playa

Comprar una vivienda en la Playa de San Juan, La Albufereta o el Cabo de la Huerta en...
Sigue leyendo
Todos contra el mosquito tigre

Todos contra el mosquito tigre

Desde Administración Atena queremos contribuir a la campaña que está en marcha, y esta...
Sigue leyendo
Paseo muro litoral en Finca Adoc

Nuevas obras en el frente litoral de Finca Adoc

El Ayuntamiento de Alicante está llevando a cabo reparaciones y mejoras en el muro de...
Sigue leyendo
Placa vivienda turistica de la Comunitat Valenciana

Viviendas turísticas en nuestros edificios y urbanizaciones

La proliferación de viviendas destinadas al uso turístico ha generado beneficios económicos...
Sigue leyendo
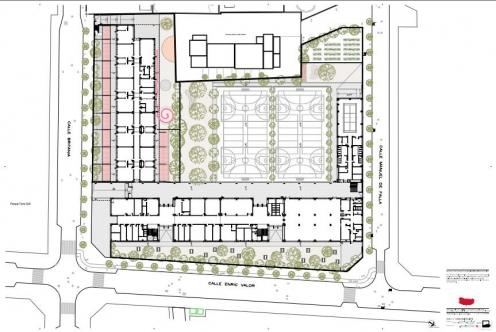
Plano del nuevo CEIP La Almadraba

Comienza la construcción del CEIP Almadraba de Alicante

La construcción del nuevo colegio público (CEIP) La Almadraba comenzarán la próxima...
Sigue leyendo

Nuevo Plan Parcial I/4, Albufereta

El Ayuntamiento de Alicante está impulsando el desarrollo de un nuevo barrio en Albufereta,...
Sigue leyendo
Desde la playa de la Almadraba

Un nuevo horizonte para La Almadraba

Su horizonte más cercano lleva a su apertura a finales de 2025, aunque esta Semana Santa se...
Sigue leyendo
CALLE SAN FERNANDO

Zona de Bajas Emisiones en Alicante

La implementación de la ZBE en Alicante es una iniciativa ambiciosa que va más allá de una...
Sigue leyendo
Vista de la Albufereta - Alicante

Los orígenes de nuestro barrio

Conocer Alicante y su provincia tiene inevitables referencias a nuestro barrio: La Albufereta...
Sigue leyendo
Tarjeta del ayuntamiento de Alicante

Tarjeta para usar nuevos contenedores de basura orgánica

La ciudad de Alicante ha implementado un sistema de gestión de residuos orgánicos mediante...
Sigue leyendo
Llamando por teléfono

Teléfonos de interés en Alicante

En cualquier ciudad, y en este caso en Alicante, los números de emergencia son recursos...
Sigue leyendo
II Cadena Humana

Jornada de reivindicación de la plataforma Somos Mediterrania

La costa española se enfrenta a una crisis ambiental que amenaza su belleza natural y...
Sigue leyendo

Comparar listados

Comparar
Buscar
Rango de precios Desde Hasta